Το κτήριο του ξεχασμένου Σηματοτηλέγραφου των Κυθήρων, ξαναζωντάνεψε ψηφιακά. Μια πρωτοβουλία του Ελληνικού Ινστιτούτου Ναυτικής Ιστορίας.
- 07/01/2026
- 0
Το Ελληνικό Ινστιτούτο Ναυτικής Ιστορίας, με αφορμή την ολοκλήρωση της ψηφιακής ανασύστασης του ερειπωμένου κτηρίου και της λειτουργίας του Σηματοτηλέγραφου των Κυθήρων, θα παρουσιάσει για πρώτη φορά στο κοινό το αποτέλεσμα του έργου αυτού με τη βοήθεια των συντελεστών του και μέσα από πολύ ενδιαφέρον οπτικό υλικό, την Τετάρτη 21 Ιανουαρίου 2026 στις 7 το απόγευμα στο χώρο της Ιστορικής Βιβλιοθήκης του Ιδρύματος Αικατερίνη Λασκαρίδη (2ας Μεραρχίας & Ακτή Μουτσοπούλου Πειραιάς).
Τι είναι ο Σηματοτηλέγραφος των Κυθήρων;
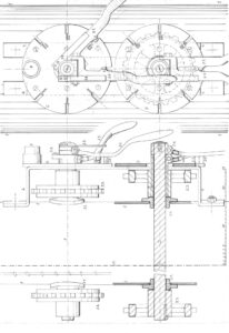
Τον Αύγουστο του 2017 ο καθηγητής Αρχιτεκτονικής Μανόλης Κορρές συνάντησε για πρώτη φορά τα χαλάσματα ενός κτιρίου κοντά στον φάρο Μουδάρι στο Βόρειο άκρο των Κυθήρων. Με τα εντελώς πρόχειρα μέσα που διέθετε (ήταν σε διακοπές) ετοίμασε αναλυτικά σχέδια αναπαραστάσεως τόσο των αρχιτεκτονικών όσο και των μηχανολογικών ευρημάτων.
Μετά από μελέτη μηνών διαπίστωσε ότι το κτίριο ήταν ένας από τους λίγους σηματοτηλέγραφους που λειτούργησαν στην Ελλάδα στα τέλη του 19ου μέχρι τις αρχές του 20ου αιώνα. Επρόκειτο για κτήριο από το οποίο μεταβιβάζονταν προς τα διερχόμενα πλοία, με τη βοήθεια κινούμενων μεγάλων μηχανικών βραχιόνων, πληροφορίες και εντολές είτε ναυτιλιακής ενημέρωσης είτε εμπορικής φύσεως (πχ επόμενος λιμένας φόρτωσης ή αλλαγή ναύλου κλπ). Με την ανακάλυψη της ασύρματης τηλεγραφίας, στις αρχές του 20ου αιώνα, εξέλειπε αιφνίδια η ανάγκη ύπαρξης τέτοιων υπηρεσιών, το κτίριο εγκαταλείφθηκε και σιγά – σιγά έσβησε από τις μνήμες των ντόπιων ο σκοπός της αρχικής ύπαρξής του.
Μια ακόμα επίσκεψη του καθηγητή στα Κύθηρα τον Αύγουστο του 2018 είχε ως αποτέλεσμα την λεπτομερέστερη μελέτη και αποτύπωση του οπτικού μηχανισμού του σηματοτηλέγραφου, δηλαδή των μεταλλικών βραχιόνων με τους οποίους μεταδίδονταν τα μηνύματα προς τα πλοία. Τα επικαιροποιημένα αποτελέσματα της έρευνας παρουσιάστηκαν τον Οκτώβριο του 2021 στην Ακαδημία Αθηνών και εκδόθηκαν σε ειδικό τεύχος πρακτικών.
Η εμπλοκή του ΕΛ.Ι.Ν.ΙΣ.
Τέλος του 2023 το Ελληνικό Ινστιτούτο Ναυτικής Ιστορίας αποφάσισε να υποστηρίξει ενεργά την αποκατάσταση της ιστορικής μνήμης σχετικά με τον Σηματοτηλέγραφο των Κυθήρων. Τον Φεβρουάριο του 2024 διοργάνωσε σχετική δημόσια παρουσίαση από τον Μανόλη Κορρέ με συμμετοχή και του Δημάρχου Κυθήρων στο χώρο του Ιδρύματος Αικατερίνης Λασκαρίδη.
Μετά από τη συνάντηση αυτή το ΕΛ.Ι.Ν.ΙΣ. ανέλαβε την πρωτοβουλία να υποστηρίξει ως κύριος χορηγός και συντονιστής την πλήρη ψηφιακή αναπαράσταση του κτηρίου και της λειτουργίας του Σηματοτηλέγραφου, με απότερο στόχο να συμβάλει και στην πλήρη, κάποτε, ανακατασκευή του πραγματικού κτηρίου και τη δημιουργία ενός μουσείου για αυτή τη χαμένη τεχνολογία. Στην προσπάθεια αυτή στάθηκε αρωγός το Υπουργείο Πολιτισμού επιχορηγώντας μέρος του έργου μέσω του προγράμματος “Δημιουργική Ελλάδα 2025 / Ψηφιακός Πολιτισμός”.
Στην εκδήλωση της 21ης Ιανουαρίου για την δημόσια παρουσίαση της εργασίας και του τελικού αποτελέσματος θα προβληθεί πλούσιο οπτικό υλικό και θα μιλήσουν οι συντελεστές του έργου:
Μανώλης Κορρές: Ιστορική και αρχιτεκτονική μελέτη / σχεδιαστική καταγραφή
Γιώργος Μαστρογεωργίου: Ψηφιακή αναπαράσταση (3d modeling)
Γιώργος Μακαρονίδης: Δημιουργία εικονικής περιήγησης
Γιώργος Μαραγκουδάκης: Εναέρια βιντεοσκόπηση
Την εκδήλωση θα συντονίσει ο Αντιπρόεδρος του ΕΛ.Ι.Ν.ΙΣ. Λεωνίδας Τσιαντούλας.
Η είσοδος θα είναι ελεύθερη για το κοινό.


















